向海而生,构建可持续的总部园区-中国铁建集团临港总部项目
上海 • 中国 • 2020
从太空俯瞰上海,位于城市东南方的滴水湖呈严格的几何圆形,如一颗翡翠与不远处的太平洋交相辉映。滴水成湖,向海而生。上海自贸试验区临港新片区围湖而建,汇聚了一批国内外各类大型企业总部入驻,如特斯拉公司,中建集团等。在这片充满活力的土地上,中国铁建集团临港总部园区项目应运而生。
状态:进行中
时间:2020
业主:中国铁建股份有限公司
类型:投标 / 入围
内容:企业总部 / 园区 / 工业建筑 / 办公建筑 / 公共建筑
建筑面积/地块面积:141,990 m² / 34,127 m²
主持建筑师:刘相诚
主创建筑师:刘相诚 / 申鹏
合作伙伴:中铁上海设计院集团有限公司

滴水湖@ Google Map
从太空俯瞰上海,位于城市东南方的滴水湖呈严格的几何圆形,如一颗翡翠与不远处的太平洋交相辉映。滴水成湖,向海而生。上海自贸试验区临港新片区围湖而建,汇聚了一批国内外各类大型企业总部入驻,如特斯拉公司,中建集团等。在这片充满活力的土地上,中国铁建集团临港总部园区项目应运而生。

建筑与滴水湖的关系
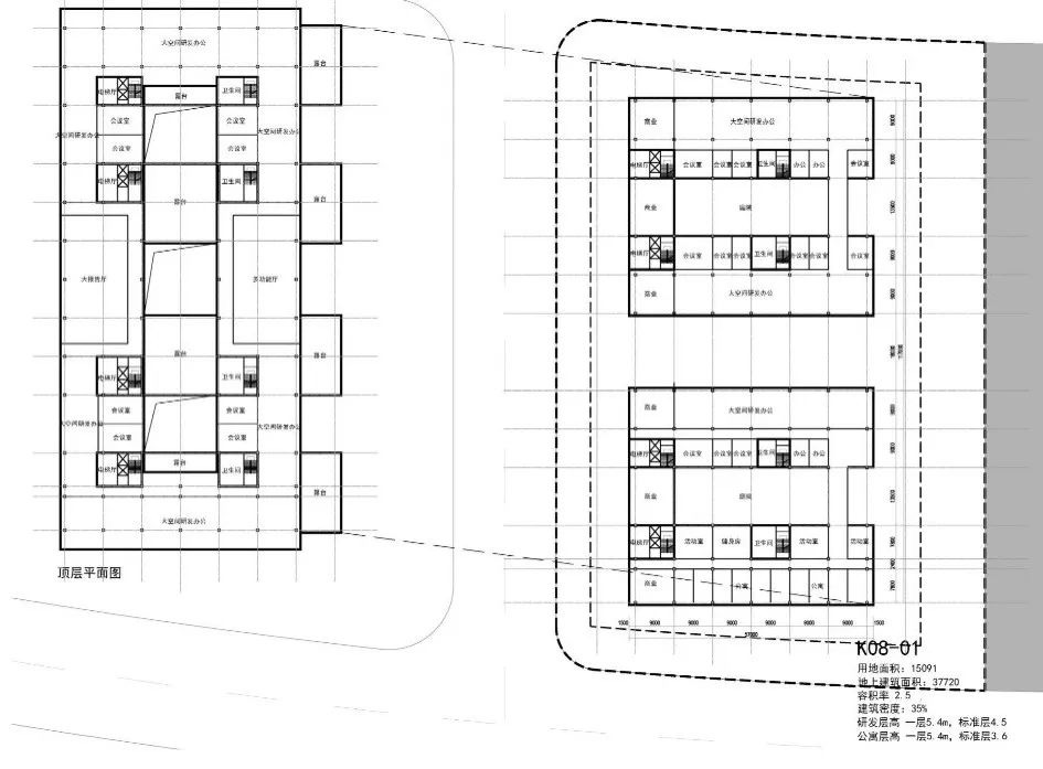
项目选址位于滴水湖南岸一线湖景,可以俯瞰整个湖面。园区包含三个地块,K04-01地块,K07-01地块,K08-01地块,总用地面积为34127平方米,总建筑面积为14.2万平方米,容积率为2.5-3.0。三个地块构成L型布局,其中前两个地块沿滴水湖并列布置,东侧为南北向的运河。因此三个地块均面水而生,地理位置优越,景观资源丰富。项目包含总部办公、研发办公、公寓和服务配套等功能。

两座轴对称的塔楼在水面的倒映下构成水平和纵向两组镜面对称,形成旋转的视觉效果
在中国铁建集团临港总部园区设计中,我们实践“韧性建筑”的理念,为整个项目赋予了更强的适应力和可持续性。我们不仅仅关注建筑的外观,更是以一个系统性的、全周期的管理方法,旨在创造一个多功能、可持续、标志性的总部园区。针对这个项目,我们着重考虑三个关键词:形象、系统、空间。
01 形象:企业文化的建筑表达
透明性与开放性


鸟瞰图
模糊的建筑边界,将湖景引入建筑内部
建筑的大面积玻璃幕墙设计体现了企业透明、开放的经营理念。不仅提供了自然采光,还模糊了室内外的界限,允许外部环境与内部空间的视觉和心理互动。将整个湖景纳入到建筑内部。直线条的使用和坚固的立方体形状传递出力量和稳定性的信息。这种设计语言隐喻了中国铁建集团作为基础设施建设领域巨头的坚实基础和可靠性。
稳定性与律动感

沿街视角
在中国建筑传统中,风水是影响设计决策的重要因素。两组建筑对称布局,旨在营造一种均衡和稳定的环境,形成一种动态的平衡。旋转形态在视觉上创造了一种动感,隐喻企业的活力与不断前进的精神。通过将公司缩写倒影在水中,巧妙地将公司的视觉标识融入建筑设计。


将公司名称缩写倒影在水中
均衡与协调

建筑立面细部比例推敲
建筑沿湖的两栋集团总部塔楼,由于限高60米,体块较为方正,因此其本身立面细节的尺度和比例就显得格外重要。方案细致地推敲立面的黄金分割比例,以达到均衡的比例。
02 系统:模数化设计与智慧园区系统
在"韧性建筑”理念之下,我们践行"全域性管理"的方法论,以客户视角为出发点,着眼于项目全周期,将空间使用能效、项目建设成本和后期运维效率均作为核心考量因素,帮助企业实现空间、经济、文化等各方面价值的最大化。
空间层面,在总体功能规划中三个地块形成有机联系,通过顶部的会议中心,将东南侧地块的研发、办公及公寓与主楼连结起来,流线贯通高效,并在顶部形成共享空间。
建筑的标准层面积、核心筒占比,以及建筑层高,均按照成熟的模数化设计,从而帮助客户有效降低设计成本,提升空间使用效能。


标准层高模数研究

标准层得房率研究
此外,我们与企业相关部门合作,创新地提出硬件与软件相结合,空间与数字管理相结合的新模式。我们在建筑设计阶段将运营与智慧管理模式提前置入前期阶段,而非在施工图阶段单纯地解决弱电系统问题。
我们与业主共创智慧园区共享管理的解决方案,涵盖分时共享、门禁系统、共享会议室、远程办公和高效协作等各个层面的智慧共享模式。通过智能的资源预订系统,员工可以预订共享办公空间、会议室、设备等。同时,基于大数据对员工需求的分析,共享资源可被团队和员工分时间段按需预订和使用。客户制定明确的远程工作政策,允许员工在需要时远程办公,并提供现场办公与远程办公的空间支持。鼓励跨部门的合作项目,通过定期的跨部门会议和协作工具来促进信息共享和协作。
03 空间:激发创造性的共享环境
交流空间可以起到促进员工创造力的重要作用,因为它们提供了一个开放、轻松的环境,有助于激发员工的想象力和灵感。因此交流与共享的空间和管理模式,是我们在此项目中着重考虑的因素之一。该项目中,我们首次尝试了三个维度的共享模式的探索,包括:园区的开放景观共享空间、建筑体块间的共享交流体块模组、建筑内部的交流空间。
园区尺寸的开放景观共享空间

不同形式的公共空间
在整个园区内,建筑底层是开放和延续的,裙楼底层是打开的,并通向河岸景观,员工可以共享包括公共花园、户外休息区、步行道和自行车道等共享资源。户外办公区域、咖啡角、会议区域和运动设施鼓励员工在不同环境中工作和互动,激发创造力。
建筑体块间的共享交流体块模组

顶部巨构般的公共连接体
在园区内的不同建筑体块之间,通过顶部的共享体块进行连接,体块内部穿插不同的模组:通道、楼梯和电梯等。这一公共连接体本身也具备多功能空间,用于举办工作坊、会议、展览和社交活动,以支持员工之间的交流和创意分享。
建筑内部的交流空间
在建筑内部,通过合理的布局设计,创造出开放的工作环境,包括开放式办公室、休息区、厨房和协作空间。这些区域应该鼓励员工之间的交流和互动,以促进创新。在建筑设置专门的创意角,提供创意工具、白板、涂鸦墙和投影设备,以便员工可以在这里汇聚并共同探讨创新想法。
中国铁建集团临港总部园区设计方案巧妙融合了企业形象与创新管理。透明坚固的建筑体现了企业的开放与稳定,而系统性的模数化设计和智慧园区系统提升了项目的适应性。共享管理模式创造了充满创造力的环境,将工作、休息和创意分享有机结合。这不仅是一个符合企业形象的总部园区,更是通过共享管理的创新模式,赋予了项目附加价值,打造了一个标志性、竞争力十足的智能化工作环境,为企业的创新与发展提供了强大支持,也赋予企业与众不同的企业文化和竞争优势。


首层层平面图
标准层平面图